Kantoor te huur, Støvring, North Jutland Region,
, 9530 Støvring- Kantoor te huur
- 24 - 483 m2
Kantoor te huur, Støvring, North Jutland Region,
Udlejning af kontor i Støvring Centrum
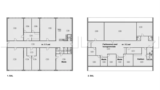
Vi kan tilbyde kontorlokaler i Grangårdscentret nr. 5 på 1. sal, hvor lokale 1.02 på 48 m² og 1.11B på 24 m² ledige.
Centret er placeret centralt i Støvring, kun få minutter fra motorvejen og mindre end 20 km fra Aalborg, hvilket gør det nemt for både dig og dine kunder at komme til og fra adressen. Og med mere end 100 gratis parkeringspladser lige ved døren slipper du for besværet med p-skiver og betalingsanlæg.
Indenfor finder du lyse fællesområder, et lækkert fælleskøkken med god spiseplads, toiletfaciliteter og et mødelokale, som du frit kan benytte til kundemøder og samarbejdssamtaler.
Kontorlokalerne ligger på 1. og 2. sal. Hele 2. sal er udlejet til Rebild Kommune, mens 1. sal rummer en række forskellige virksomheder.
Vil du høre mere eller se de ledige lokaler? Kontakt os – vi giver gerne en rundvisning.
Informatie en data
Deze kantoorruimte, bevindt zich in Støvring. Støvring ligt in de gemeente , die gelegen is in North Jutland Region. De bedrijfsruimte is 483 m2 groot.
Vergelijkbare zoekresultaten
-
800 m2 magazijn te huur in Støvring, North Jutland Region
- 33.333 DKK per maand
- 500 DKK /m2/jaar- excl service
-
800 m2 magazijn te huur in Støvring, North Jutland Region
- 33.333 DKK per maand
- 500 DKK /m2/jaar- excl service
-
155 m2 kantoor te huur in Støvring, North Jutland Region
- 6.000 DKK per maand
- 464 DKK /m2/jaar- excl service
-
242 m2 kantoor te huur in Støvring, North Jutland Region
- 15.125 DKK per maand
- 750 DKK /m2/jaar- excl service
-
8211 m2 kantoor te huur in Støvring, North Jutland Region
- 210 DKK per maand
- 0,31 DKK /m2/jaar- excl service
-
5000 m2 magazijn te huur in Støvring, North Jutland Region
- 195.833 DKK per maand
- 470 DKK /m2/jaar- excl service
-
852 m2 magazijn te huur in Støvring, North Jutland Region
- 35.150 DKK per maand
- 495 DKK /m2/jaar- excl service
-
800 m2 magazijn te huur in Støvring, North Jutland Region
- 45.208 DKK per maand
- 678 DKK /m2/jaar- excl service
-
80 m2 bedrijfspand te huur in Støvring, North Jutland Region
- 9.500 DKK per maand
- 1.425 DKK /m2/jaar- excl service
Veelgestelde vragen
Statistieken over de ontwikkeling van beschikbare kantorruimte te huur in Støvring in de afgelopen maand
Hieronder zie je de ontwikkeling van beschikbare kantorruimte te huur in Støvring over de afgelopen maand. In de eerste kolom zie je de datum. In de tweede kolom zie je het totale nummer van kantorruimte te huur in Støvring op de datum. In de derde kolom zie je de hoeveelheid nieuwe kantorruimte in Støvring die op die datum beschikbaar was voor verhuur. In de vierde kolom zie je het nummer van kantorruimte in Støvring die op die datum werd gehuurd. Zie ook totaal statistieken over alle beschikbare kantorruimte in Støvring in de loop der tijd, totaal statistieken over nieuwe kantorruimte in Støvring in de loop der tijd, totaal statistieken over verhuur kantorruimte in Støvring in de loop der tijd
| Datum | Alle kantorruimte te huur | Nieuwe kantorruimte te huur | Verhuurd kantorruimte |
|---|---|---|---|
| 19. november 2025 | 13 | 0 | 3 |
| 18. november 2025 | 16 | 0 | 0 |
| 17. november 2025 | 16 | 0 | 0 |
| 16. november 2025 | 16 | 0 | 0 |
| 15. november 2025 | 16 | 0 | 0 |
| 14. november 2025 | 16 | 2 | 1 |
| 13. november 2025 | 15 | 1 | 0 |
| 12. november 2025 | 14 | 0 | 0 |
| 11. november 2025 | 14 | 0 | 0 |
| 10. november 2025 | 14 | 0 | 0 |
| 9. november 2025 | 14 | 0 | 0 |
| 8. november 2025 | 14 | 0 | 0 |
| 7. november 2025 | 14 | 0 | 0 |
| 6. november 2025 | 14 | 0 | 0 |
| 5. november 2025 | 14 | 0 | 0 |
| 4. november 2025 | 14 | 0 | 0 |
| 3. november 2025 | 14 | 0 | 0 |
| 2. november 2025 | 14 | 0 | 0 |
| 1. november 2025 | 14 | 0 | 0 |
| 31. oktober 2025 | 14 | 0 | 0 |
| 30. oktober 2025 | 14 | 0 | 0 |
| 29. oktober 2025 | 14 | 0 | 0 |
| 28. oktober 2025 | 14 | 0 | 0 |
| 27. oktober 2025 | 14 | 0 | 0 |
| 26. oktober 2025 | 14 | 0 | 0 |
| 25. oktober 2025 | 14 | 0 | 0 |
| 24. oktober 2025 | 14 | 0 | 0 |
| 23. oktober 2025 | 14 | 0 | 1 |
| 22. oktober 2025 | 15 | 3 | 3 |
| 21. oktober 2025 | 15 | 3 | 0 |
| 20. oktober 2025 | 12 | 0 | 0 |
Statistieken over momenteel beschikbare kantorruimte te huur in Støvring
In de onderstaande tabel zie je een reeks gegevens over beschikbare kantorruimte te huur in Støvring.Bekijk ookverzamelde statistieken van alle beschikbare kantorruimte in Støvring in de loop van de tijd, de verzamelde statistieken van nieuwe kantorruimte in Støvring in de loop van de tijd, de verzamelde statistieken van verhuurde kantorruimte in Støvring in de loop van de tijd
| Kantorruimte | |
|---|---|
| Beschikbare panden | 13 |
| Nieuw pand sinds gisteren | 0 |
| Panden verhuurd sinds gisteren | 3 |
| Totaal beschikbare m2 | 12.291 |
| Gemiddelde prijs per m2 per jaar exkl. | 103 |
| Hoogste prijs per m2 per jaar | 191 |
| Laagste prijs per m2 per jaar | 47 |