Kantoor te huur, Kopenhagen NV, Kopenhagen,
, Kopenhagen NV- Kantoor te huur
- 10 - 36 m2
- 12.978 DKK per maand
Kantoor te huur, Kopenhagen NV, Kopenhagen,
Fakta
- 1896873
- Kantoor
- Coworking
- 1 - 20
- 10 - 36 m2
- 43.260 DKK
- 3.605 DKK
- 4.326 DKK
- 1.202 DKK
Kontorer på varierende størrelser fra 15 til 36 m2
Adgang til fælleskøkken og spiseplads, badeværelse samt 3 toiletter.
Her er muligheden for enten at leje et enkelt aflukket kontor eller tage flere rum til en større virksomhed.
Lejen inkluderer fri afbenyttelse af alle fællesfaciliteter såsom 1000 mbit fibernet, køkken med hvidevarer, toiletter og fællesområder.
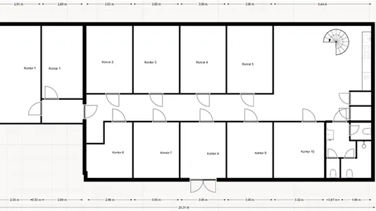
Priser på lokalerne som kan ses på plantegningen:
Kontor 2, 3, 4, 5, 6, 7, 9 og 10: kr. 3605 pr. md. + moms
PT. er lokale 1, 3 og 5 ledige
Lokale 1 ca. 36 m2 netto koster kr. 8.500 + moms pr. md. (her kan man leje et ekstra depotrum på ca. 9 m2 til kr. 1.500 + moms ekstra)
Lokale 3 og 5 koster ca. 15 m2 netto kr. 3605 pr md. + moms. per stk.
Informatie en data
Deze kantoorruimte, die ook kan worden gebruikt als Coworking, bevindt zich in Kopenhagen NV. Kopenhagen NV ligt in de gemeente , die gelegen is in Kopenhagen. De bedrijfsruimte is 36 m2 groot. U kunt dit kantoor huren voor 155.736 DKK per jaar.
Vergelijkbare zoekresultaten
-
1101 m2 magazijn te huur in Kopenhagen NV, Kopenhagen, Frederikssundsvej
Vrij contact- 130.000 DKK per maand
- 1.416 DKK /m2/jaar- excl service
-
819 m2 winkel te huur in Kopenhagen NV, Kopenhagen, Frederikssundsvej
Vrij contact- 112.500 DKK per maand
- 1.648 DKK /m2/jaar- excl service
-
216 m2 kantoor te huur in Kopenhagen NV, Kopenhagen
- 20.667 DKK per maand
- 1.148 DKK /m2/jaar- excl service
-
212 m2 kantoor te huur in Kopenhagen NV, Kopenhagen
- 21.167 DKK per maand
- 1.198 DKK /m2/jaar- excl service
-
212 m2 kantoor te huur in Kopenhagen NV, Kopenhagen
- 21.167 DKK per maand
- 1.198 DKK /m2/jaar- excl service
-
92 m2 winkel te huur in Kopenhagen NV, Kopenhagen
- 7.367 DKK per maand
- 960 DKK /m2/jaar- excl service
-
72 m2 praktijk te huur in Kopenhagen NV, Kopenhagen
- 16.000 DKK per maand
- 2.666 DKK /m2/jaar- excl service
-
331 m2 kantoor te huur in Kopenhagen NV, Kopenhagen
- 27.583 DKK per maand
- 1.000 DKK /m2/jaar- excl service
-
Kantoor te huur in Kopenhagen NV, Kopenhagen
- 1.300 DKK /m2/jaar- excl service
Veelgestelde vragen
Statistieken over de ontwikkeling van beschikbare kantorruimte te huur in Kopenhagen NV in de afgelopen maand
Hieronder zie je de ontwikkeling van beschikbare kantorruimte te huur in Kopenhagen NV over de afgelopen maand. In de eerste kolom zie je de datum. In de tweede kolom zie je het totale nummer van kantorruimte te huur in Kopenhagen NV op de datum. In de derde kolom zie je de hoeveelheid nieuwe kantorruimte in Kopenhagen NV die op die datum beschikbaar was voor verhuur. In de vierde kolom zie je het nummer van kantorruimte in Kopenhagen NV die op die datum werd gehuurd. Zie ook totaal statistieken over alle beschikbare kantorruimte in Kopenhagen NV in de loop der tijd, totaal statistieken over nieuwe kantorruimte in Kopenhagen NV in de loop der tijd, totaal statistieken over verhuur kantorruimte in Kopenhagen NV in de loop der tijd
| Datum | Alle kantorruimte te huur | Nieuwe kantorruimte te huur | Verhuurd kantorruimte |
|---|---|---|---|
| 12. november 2025 | 54 | 0 | 0 |
| 11. november 2025 | 54 | 0 | 1 |
| 10. november 2025 | 55 | 0 | 0 |
| 9. november 2025 | 55 | 0 | 0 |
| 8. november 2025 | 55 | 0 | 0 |
| 7. november 2025 | 55 | 0 | 0 |
| 6. november 2025 | 55 | 1 | 0 |
| 5. november 2025 | 54 | 1 | 1 |
| 4. november 2025 | 54 | 0 | 0 |
| 3. november 2025 | 54 | 1 | 1 |
| 2. november 2025 | 54 | 1 | 0 |
| 1. november 2025 | 53 | 1 | 2 |
| 31. oktober 2025 | 54 | 1 | 0 |
| 30. oktober 2025 | 53 | 0 | 0 |
| 29. oktober 2025 | 53 | 0 | 0 |
| 28. oktober 2025 | 53 | 0 | 2 |
| 27. oktober 2025 | 55 | 0 | 0 |
| 26. oktober 2025 | 55 | 0 | 0 |
| 25. oktober 2025 | 55 | 0 | 0 |
| 24. oktober 2025 | 55 | 0 | 0 |
| 23. oktober 2025 | 55 | 3 | 0 |
| 22. oktober 2025 | 52 | 6 | 1 |
| 21. oktober 2025 | 47 | 0 | 1 |
| 20. oktober 2025 | 48 | 0 | 1 |
| 19. oktober 2025 | 49 | 0 | 0 |
| 18. oktober 2025 | 49 | 3 | 3 |
| 17. oktober 2025 | 49 | 3 | 0 |
| 16. oktober 2025 | 46 | 1 | 0 |
| 15. oktober 2025 | 45 | 1 | 1 |
| 14. oktober 2025 | 45 | 0 | 0 |
| 13. oktober 2025 | 45 | 0 | 0 |
Statistieken over momenteel beschikbare kantorruimte te huur in Kopenhagen NV
In de onderstaande tabel zie je een reeks gegevens over beschikbare kantorruimte te huur in Kopenhagen NV.Bekijk ookverzamelde statistieken van alle beschikbare kantorruimte in Kopenhagen NV in de loop van de tijd, de verzamelde statistieken van nieuwe kantorruimte in Kopenhagen NV in de loop van de tijd, de verzamelde statistieken van verhuurde kantorruimte in Kopenhagen NV in de loop van de tijd
| Kantorruimte | |
|---|---|
| Beschikbare panden | 54 |
| Nieuw pand sinds gisteren | 0 |
| Panden verhuurd sinds gisteren | 0 |
| Totaal beschikbare m2 | 27.907 |
| Gemiddelde prijs per m2 per jaar exkl. | 192 |
| Hoogste prijs per m2 per jaar | 579 |
| Laagste prijs per m2 per jaar | 134 |