Büro zur Miete, Aarhus N, Aarhus, Jens Baggesens Vej 90A
Jens Baggesens Vej 90A, 8200 Århus N- Büro zur Miete
- 360 m2
- Büro zur Miete
- 360 m2
⚡ Sehen Sie alle Informationen zum Objekt und erhalten Sie direkten Zugang zu den Kontaktdaten des Vermieters.
Büro zur Miete, Aarhus N, Aarhus, Jens Baggesens Vej 90A
Jacob Ladefoged
Tel: 28 69 25 65
E-Mail-Adresse anzusehenxxxxxxxxxxxxxxxxxxxxxxxx
PRO-VERMIETER
Mehr lesenLesen Sie mehr über den Vermieter
Charmerende kontor med højt til loftet i Ringgade Centret
Området
Ringgade Centret er særdeles centralt placeret ved Aarhus’ mest befærdede færdselsåre, Vestre Ringgade, som udgør en del af det centrale indre ringgadesystem omkring Aarhus bymidte. Mere end 30.000 biler passerer dagligt Ringgade Centret. Ejendommen er beliggende i et erhvervs- og kulturelt orienteret byområde, der rummer erhvervsvirksomheder, Storcenter Nord, Aarhus Universitet, Handelshøjskolen og Forskerparken foruden privat beboelse. Parkeringspladser kan tillejes lejemålet, alle med adgang fra Jens Baggesens Vej og Hangøvej. Fra lejemålet er der kort afstand til bymidten og let adgang til alle udfaldsvejene samt motorveje, ligesom der er bybusforbindelser og letbane indenfor gåafstand.
Ejendommen
Ringgade Centret er opført som fem forskellige bygningsafsnit, der alle er placeret i facadelinjen mod Ringgaden. I arkitektonisk henseende fremtræder de som en harmonisk helhed med ens facadefarve. Bygningerne er opmuret i gode danske teglsten, ligesom byggeriet iøvrigt er udført under anvendelse af sunde, naturlige materialer. Parkeringsarealer er placeret langs bygningernes anden facade mod Jens Baggesens Vej, hvor der i øjeblikket opføres en spritny parkeringskælder samt boliglejemål.
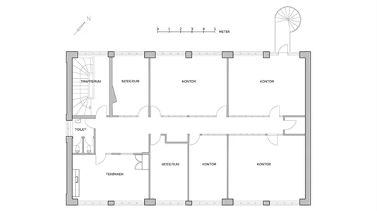
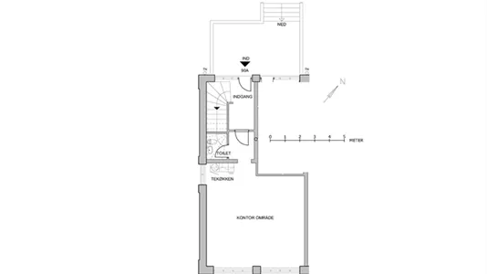
Lejemålet
Med præsentabelt indgangsparti bydes ny lejer velkommen i det 360 m² højloftede kontorlejemål, hvor bl.a. et gammelt charmerende vindue og genbrugstømmer er med til at pryde omgivelserne. Lejemålet er inddelt i to etager, henholdsvis 73 m² og 287 m² på øverste plan. Indvendigt byder lejemålet på flere kontorer i forskellige størrelser, møderum, tekøkken samt toiletfaciliteter. Fælles for alle er massive egetrægulve, en fantastisk lofthøjde og store vinduespartier som sikrer et naturligt lysindfald.
Lejemålet overtages ny istandsat efter nærmere aftale.
Informationen und Daten
Diese Bürofläche , die auch als Praxis genutzt werden kann, befindet sich in Aarhus N. Aarhus N befindet sich in der Gemeinde , die sich in in Aarhus befindet. Die Gesamtfläche des Unternehmens beträgt 360 m2.
Ähnliche Räumlichkeiten
-
306 m2 büro zur Miete in Aarhus N, Aarhus, Olof Palmes Alle
Freier kontakt- 28.050 DKK per Monat
- 1.100 DKK Euro/m2/Jahr - exkl Nebenkosten
-
850 m2 büro zur Miete in Aarhus N, Aarhus, Langdyssen
Freier kontakt- 46.750 DKK per Monat
- 660 DKK Euro/m2/Jahr - exkl Nebenkosten
-
185 - 375 m2 lager zur Miete in Aarhus N, Aarhus
- 455 DKK Euro/m2/Jahr - exkl Nebenkosten
-
595 m2 lager zur Miete in Aarhus N, Aarhus
- 476 DKK Euro/m2/Jahr - exkl Nebenkosten
-
375 m2 lager zur Miete in Aarhus N, Aarhus
- 511 DKK Euro/m2/Jahr - exkl Nebenkosten
Häufig gestellte Fragen
Statistiken über die Entwicklung der verfügbaren Büros for rent in Aarhus N im letzten Monat
Unten sehen Sie die Entwicklung der verfügbaren Büros zur miete in Aarhus N über den vergangenen Monat. In der ersten Spalte sehen Sie das Datum. In der zweiten Spalte sehen Sie die Gesamtzahl der Büros zur miete in Aarhus N bis Heute. In der dritten Spalte sehen Sie die Anzahl der neuen Büros in Aarhus N die an diesem Tag zur Miete verfügbar war. In der vierten Spalte sehen Sie die Anzahl von Büros in Aarhus N die an diesem Tag vermietet wurden. Siehe auch die zusammengefassten Statistiken über alle verfügbaren Büros in Aarhus N über Zeit, zusammengefasste Statistiken über neue Büros in Aarhus N über Zeit, zusammengefasste Statistiken über vermietete Büros in Aarhus N über Zeit
| Datum | Alle Büros zur Miete | Neue Büros zur Miete | Vermietete Büros |
|---|---|---|---|
| 24. November 2025 | 123 | 0 | 0 |
| 23. November 2025 | 123 | 0 | 0 |
| 22. November 2025 | 123 | 0 | 0 |
| 21. November 2025 | 123 | 3 | 1 |
| 20. November 2025 | 121 | 1 | 0 |
| 19. November 2025 | 120 | 0 | 0 |
| 18. November 2025 | 120 | 0 | 0 |
| 17. November 2025 | 120 | 0 | 0 |
| 16. November 2025 | 120 | 1 | 1 |
| 15. November 2025 | 120 | 1 | 0 |
| 14. November 2025 | 119 | 1 | 0 |
| 13. November 2025 | 118 | 0 | 0 |
| 12. November 2025 | 118 | 0 | 2 |
| 11. November 2025 | 120 | 1 | 0 |
| 10. November 2025 | 119 | 0 | 0 |
| 9. November 2025 | 119 | 0 | 1 |
| 8. November 2025 | 120 | 0 | 1 |
| 7. November 2025 | 121 | 1 | 0 |
| 6. November 2025 | 120 | 3 | 3 |
| 5. November 2025 | 120 | 3 | 0 |
| 4. November 2025 | 117 | 0 | 0 |
| 3. November 2025 | 117 | 0 | 1 |
| 2. November 2025 | 118 | 0 | 0 |
| 1. November 2025 | 118 | 0 | 2 |
| 31. Oktober 2025 | 120 | 1 | 1 |
| 30. Oktober 2025 | 120 | 1 | 0 |
| 29. Oktober 2025 | 119 | 0 | 0 |
| 28. Oktober 2025 | 119 | 0 | 0 |
| 27. Oktober 2025 | 119 | 0 | 1 |
| 26. Oktober 2025 | 120 | 2 | 0 |
| 25. Oktober 2025 | 118 | 0 | 0 |
Statistiken über derzeit verfügbare büros zur Miete in Aarhus N
In der nachstehenden Tabelle sehen Sie eine Reihe von Daten über verfügbare büros zur Miete in Aarhus N.Sehen Sie auchgesammelt Statistiken über alle verfügbaren büros in Aarhus N im Laufe der Zeit, die gesammeltenStatistiken über neue büros in Aarhus N im Laufe der Zeit, die gesammelten Statistiken über vermietete büros in Aarhus N im Laufe der Zeit
| Büros | |
|---|---|
| Verfügbare Gewerbeimmobilien | 124 |
| Neue Immobilien seit gestern | 0 |
| Seit gestern vermietete Immobilien | 0 |
| Verfügbare m2 insgesamt | 157.368 |
| Durchschnittspreis pro m2 und Jahr ohne Kosten | 2.108 |
| Höchster Preis pro m2 und Jahr | 98.394 |
| Niedrigster Preis pro m2 und Jahr | 60 |