Coworking space zur Miete, Kolding, Region of Southern Denmark,
, 6000 Kolding- Coworking space zur Miete
Coworking space zur Miete, Kolding, Region of Southern Denmark,
Ingen binding, kontor til 1.425 kr.
All inclusive servicepakke: Med Copenhagen Real Estate's all inclusive servicepakke slipper du for bekymringer om ekstraomkostninger. Hos EasyOffices kontorfællesskaber dækker servicepakken el, vand, varme, internet og regelmæssig rengøring af fællesarealerne. Det betyder, at du kan fokusere udelukkende på din forretning og dine kunder uden at tænke på de praktiske detaljer, der normalt følger med et lejemål.
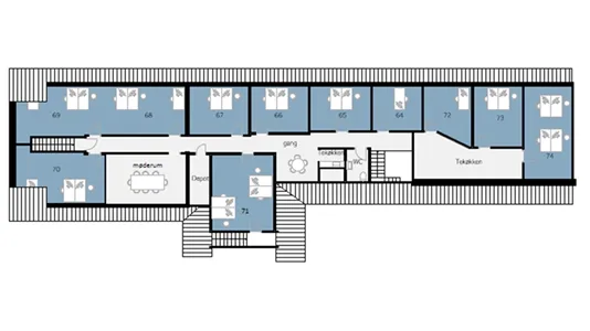
Moderne og fleksibelt kontorhotel i Kolding: I Kolding tilbyder vi kontorer med plads til 1-5 arbejdspladser. Vores priser inkluderer eget aflåselige, moderne kontor samt adgang til mødelokaler og fællesfaciliteter. Mødelokalerne kan nemt bookes online via en portal, og de er udstyret med både whiteboard og flatscreen. Derudover får du adgang til mødelokalerne på vores øvrige lokationer.
Centralt beliggende ved E45 – Nem Adgang: Kontorhotellet på Centervej ligger lige ved motorvejsafkørsel E45 mod Århus C. Den smukke, herskabelige gård, som blev opført i 1916, er senere blevet ombygget til kontorformål. Mange af de fine detaljer fra fortiden er bevaret, men bygningerne fremstår samtidig i en nutidig og moderne stil. Bygningernes udformning og placering har gjort det muligt at skabe hyggelige og spændende kontormiljøer.
Fleksible lejekontrakter: Vi tilbyder fleksible lejekontrakter, hvor du selv bestemmer tidshorisonten. Du kan tilpasse lejeperioden efter dine behov uden at være bundet af lange kontrakter.
Gode tilkørselsforhold og gratis parkering: Ejendommen er synligt beliggende med gode tilkørselsforhold og tilbyder gratis parkering lige foran ejendommen med plads til ca. 50 biler.
Se mere om kontorfællesskabet her.
Depositum: 4275 kr.
Informationen und Daten
Dieses Bürohotel mit Coworking Space befindet sich in Kolding. Kolding befindet sich in der Gemeinde , die sich in in Region of Southern Denmark befindet.
Ähnliche Räumlichkeiten
-
28 - 147 m2 büro zur Miete in Kolding, Region of Southern Denmark, Haderslevvej
Freier kontakt- 1.000 DKK Euro/m2/Jahr - exkl Nebenkosten
-
1786 m2 lager zur Miete in Kolding, Region of Southern Denmark
- 52.092 DKK per Monat
- 350 DKK Euro/m2/Jahr - exkl Nebenkosten
-
1057 m2 büro zur Miete in Kolding, Region of Southern Denmark
- 96.892 DKK per Monat
- 1.100 DKK Euro/m2/Jahr - exkl Nebenkosten
-
80 m2 laden zur Miete in Kolding, Region of Southern Denmark
- 16.333 DKK per Monat
- 2.450 DKK Euro/m2/Jahr - exkl Nebenkosten
Häufig gestellte Fragen
Statistiken über die Entwicklung der verfügbaren Coworking spaces for rent in Kolding im letzten Monat
Unten sehen Sie die Entwicklung der verfügbaren Coworking spaces zur miete in Kolding über den vergangenen Monat. In der ersten Spalte sehen Sie das Datum. In der zweiten Spalte sehen Sie die Gesamtzahl der Coworking spaces zur miete in Kolding bis Heute. In der dritten Spalte sehen Sie die Anzahl der neuen Coworking spaces in Kolding die an diesem Tag zur Miete verfügbar war. In der vierten Spalte sehen Sie die Anzahl von Coworking spaces in Kolding die an diesem Tag vermietet wurden. Siehe auch die zusammengefassten Statistiken über alle verfügbaren Coworking spaces in Kolding über Zeit, zusammengefasste Statistiken über neue Coworking spaces in Kolding über Zeit, zusammengefasste Statistiken über vermietete Coworking spaces in Kolding über Zeit
| Datum | Alle Coworking spaces zur Miete | Neue Coworking spaces zur Miete | Vermietete Coworking spaces |
|---|---|---|---|
| 20. Dezember 2025 | 25 | 0 | 0 |
| 19. Dezember 2025 | 25 | 0 | 0 |
| 18. Dezember 2025 | 25 | 0 | 0 |
| 17. Dezember 2025 | 25 | 0 | 0 |
| 16. Dezember 2025 | 25 | 0 | 0 |
| 15. Dezember 2025 | 25 | 0 | 0 |
| 14. Dezember 2025 | 25 | 0 | 0 |
| 13. Dezember 2025 | 25 | 0 | 0 |
| 12. Dezember 2025 | 25 | 0 | 0 |
| 11. Dezember 2025 | 25 | 2 | 2 |
| 10. Dezember 2025 | 25 | 2 | 0 |
| 9. Dezember 2025 | 23 | 2 | 2 |
| 8. Dezember 2025 | 23 | 2 | 0 |
| 7. Dezember 2025 | 21 | 0 | 0 |
| 6. Dezember 2025 | 21 | 1 | 1 |
| 5. Dezember 2025 | 21 | 2 | 0 |
| 4. Dezember 2025 | 19 | 0 | 0 |
| 3. Dezember 2025 | 19 | 0 | 0 |
| 2. Dezember 2025 | 19 | 0 | 0 |
| 1. Dezember 2025 | 19 | 0 | 0 |
| 30. November 2025 | 19 | 0 | 0 |
| 29. November 2025 | 19 | 0 | 0 |
| 28. November 2025 | 19 | 1 | 1 |
| 27. November 2025 | 19 | 1 | 0 |
| 26. November 2025 | 18 | 1 | 0 |
| 25. November 2025 | 17 | 0 | 0 |
| 24. November 2025 | 17 | 0 | 0 |
| 23. November 2025 | 17 | 1 | 1 |
| 22. November 2025 | 17 | 1 | 0 |
| 21. November 2025 | 16 | 1 | 0 |
| 20. November 2025 | 15 | 0 | 0 |
Statistiken über derzeit verfügbare coworking spaces zur Miete in Kolding
In der nachstehenden Tabelle sehen Sie eine Reihe von Daten über verfügbare coworking spaces zur Miete in Kolding.Sehen Sie auchgesammelt Statistiken über alle verfügbaren coworking spaces in Kolding im Laufe der Zeit, die gesammeltenStatistiken über neue coworking spaces in Kolding im Laufe der Zeit, die gesammelten Statistiken über vermietete coworking spaces in Kolding im Laufe der Zeit
| Coworking spaces | |
|---|---|
| Verfügbare Gewerbeimmobilien | 25 |
| Neue Immobilien seit gestern | 0 |
| Seit gestern vermietete Immobilien | 0 |
| Verfügbare m2 insgesamt | 3.566 |
| Durchschnittspreis pro m2 und Jahr ohne Kosten | 134 |
| Höchster Preis pro m2 und Jahr | 134 |
| Niedrigster Preis pro m2 und Jahr | 134 |