Kontor til leje, Aulum, Region Midtjylland,
, 7490 Aulum- Kontor til leje
- 60 - 1.375 m2
- 31.250 DKK kr per måned
Kontor til leje, Aulum, Region Midtjylland,
Attraktive kontor- og lagerlokaler til leje tæt på Holstebro-motorvejen i Aulum
Disse fleksible lejemål i Aulum tilbyder ideelle rammer til både administration, logistik og lager med mulighed for at tilpasse og opdele lokalerne, så de passer til din virksomheds behov.
Ejendommen på Holstebrovej 1-3 er placeret i et veludbygget industriområde med nem adgang til motorvej 18, centralt mellem Holstebro og Herning.
Lokalerne byder blandt andet på:
• Stort, lyst showroom eller mødelokale med glaspartier
• Gode udearealer med parkeringspladser
• Fælles kantine
• Mulighed for pick & pack, distribution og lagerløsninger
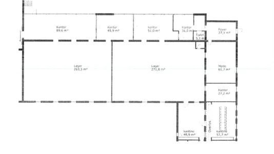
Lejemålet kan anvendes som kontor, lager eller kontorfællesskab og har en samlet størrelse på op til 1.375 m².
Lokalerne kan opdeles efter behov – lejen for lager starter ved 250 kr. og for kontor ved 375 kr./m² ekskl. drift.
Information og data
Dette kontorlejemål, som alternativt kan anvendes til Lager eller Kontorhotel, ligger i Aulum. Aulum ligger i kommunen , som ligger i Region Midtjylland. Lokalet er i alt 1375 m2. Du kan leje dette kontorlokale for 375.000 DKK per år.
Lignende lokaler
-
120 m2 kontor til leje i Aulum, Region Midtjylland, Danmarksgade
Fri kontakt- 6.500 DKK kr per måned
- 650 DKK /m2/år - excl drift
-
150 m2 restaurant til leje i Aulum, Region Midtjylland, Danmarksgade
Fri kontakt- 12.500 DKK kr per måned
- 1.000 DKK /m2/år - excl drift
-
522 m2 kontor til leje i Aulum, Region Midtjylland
- 13.050 DKK kr per måned
- 300 DKK /m2/år - excl drift
-
Butik til leje i Aulum, Region Midtjylland
- 8.035 DKK kr per måned
Ofte stillede spørgsmål
Statistik over udviklingen i ledige kontorlokaler til leje i Aulum over den sidste måned
Herunder ser du udviklingen i udbuddet og udlejningen af ledige kontorlokaler til leje i Aulum over den sidste måned. I den første kolonne ser du datoen. I den anden kolonne ser du det samlede antal kontorlokaler til leje i Aulum på datoen. I den tredje kolonne ser du antallet af nye kontorlokaler i Aulum der er udbudt til leje på datoen. I den fjerde kolonne ser du antallet af kontorlokaler i Aulum der er udlejet på datoen. Se også samlet statistik over alle udbudte kontorlokaler i Aulum over tid, samlet statistik over nye kontorlokaler i Aulum over tid, samlet statistik over udlejede kontorlokaler i Aulum over tid.
| Dato | Alle kontorlokaler til leje | Nye kontorlokaler til leje | Udlejede kontorlokaler |
|---|---|---|---|
| 28. november 2025 | 4 | 0 | 0 |
| 27. november 2025 | 4 | 0 | 0 |
| 26. november 2025 | 4 | 0 | 0 |
| 25. november 2025 | 4 | 0 | 0 |
| 24. november 2025 | 4 | 0 | 0 |
| 23. november 2025 | 4 | 0 | 0 |
| 22. november 2025 | 4 | 0 | 0 |
| 21. november 2025 | 4 | 0 | 0 |
| 20. november 2025 | 4 | 0 | 0 |
| 19. november 2025 | 4 | 0 | 0 |
| 18. november 2025 | 4 | 0 | 0 |
| 17. november 2025 | 4 | 0 | 0 |
| 16. november 2025 | 4 | 0 | 0 |
| 15. november 2025 | 4 | 0 | 0 |
| 14. november 2025 | 4 | 0 | 0 |
| 13. november 2025 | 4 | 0 | 0 |
| 12. november 2025 | 4 | 0 | 0 |
| 11. november 2025 | 4 | 0 | 0 |
| 10. november 2025 | 4 | 0 | 0 |
| 9. november 2025 | 4 | 0 | 0 |
| 8. november 2025 | 4 | 0 | 0 |
| 7. november 2025 | 4 | 0 | 0 |
| 6. november 2025 | 4 | 0 | 0 |
| 5. november 2025 | 4 | 0 | 0 |
| 4. november 2025 | 4 | 0 | 0 |
| 3. november 2025 | 4 | 0 | 0 |
| 2. november 2025 | 4 | 0 | 0 |
| 1. november 2025 | 4 | 0 | 0 |
| 31. oktober 2025 | 4 | 0 | 0 |
| 30. oktober 2025 | 4 | 0 | 0 |
| 29. oktober 2025 | 4 | 0 | 0 |
Statistik over udbuddet af kontorlokaler til leje i Aulum
I nedenstående tabel ser du en række data om udbuddet af kontorlokaler til leie i Aulum.Se også samlet statistik over alle udbudte kontorlokaler i Aulum over tid, samlet statisik over nye kontorlokaler i Aulum over tid, samlet statistid over udlejede kontorlokaler i Aulum over tid
| Kontorlokaler | |
|---|---|
| Antal ledige lokaler | 4 |
| Antal nye lokaler siden i går | 0 |
| Antal udlejede lokaler siden i går | 0 |
| Ledige m2 i alt | 3.392 |
| Gennemsnitlig pris per m2 per år uden drift | 49 |
| Højeste m2-pris | 87 |
| Laveste m2-pris | 36 |