Kliniklokale til leje, Taastrup, Storkøbenhavn,
, 2630 Taastrup- Kliniklokale til leje
- 4.660 DKK kr per måned
Kliniklokale til leje, Taastrup, Storkøbenhavn,
Momsfrit kliniklokale til 4.660 kr.
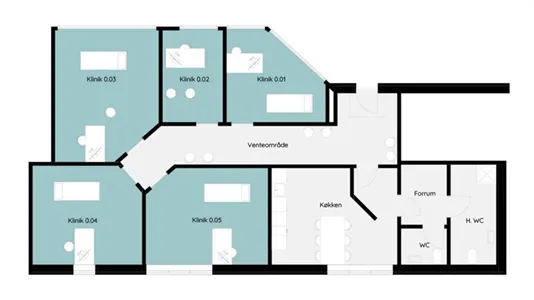
Central beliggenhed: Vores klinikfællesskab er centralt beliggende, kun 2 minutters gang fra Taastrup Station, hvilket sikrer nem adgang for både behandlere og klienter. Der er ligeledes gode parkeringsforhold tilgængelige i nærområdet.
Professionel og indbydende atmosfære: Lokalerne er moderne indrettet for at skabe en professionel og imødekommende atmosfære, der understøtter din praksis og fremmer et positivt klientmøde. EasyClinic tilbyder nyrenoverede og indflytningsklare kliniklokaler i Taastrup. Hvert lokale er privat og aflåseligt og inkluderer adgang til fælles faciliteter såsom køkken, toiletfaciliteter og et komfortabelt møbleret venteværelse for dine klienter.
Fleksibel lejekontrakt: Vi tilbyder fleksible lejekontrakter, hvor du selv bestemmer tidshorisonten. Du kan tilpasse lejeperioden efter dine behov uden at være bundet af lange kontrakter.
Se mere om klinikfællesskabet her.
Depositum: 3 kr.
Information og data
Dette kliniklejemål, ligger i Taastrup. Taastrup ligger i kommunen , som ligger i Storkøbenhavn. Du kan leje dette kliniklokale for 55.920 DKK per år.
Lignende lokaler
-
437 m2 kontor til leje i Taastrup, Storkøbenhavn, Spotorno Allé
Fri kontakt- 33.248 DKK kr per måned
- 913 DKK /m2/år - excl drift
-
1102 m2 lager til leje i Taastrup, Storkøbenhavn, Mårkærvej
Fri kontakt- 68.875 DKK kr per måned
- 750 DKK /m2/år - excl drift
-
Kliniklokale til leje i Taastrup, Storkøbenhavn
- 4.650 DKK kr per måned
-
535 m2 kontor til leje i Taastrup, Storkøbenhavn
- 44.583 DKK kr per måned
- 1.000 DKK /m2/år - excl drift
-
365 m2 kontor til leje i Taastrup, Storkøbenhavn
- 30.417 DKK kr per måned
- 1.000 DKK /m2/år - excl drift
-
35 m2 kliniklokale til leje i Taastrup, Storkøbenhavn
- 2.917 DKK kr per måned
- 1.000 DKK /m2/år - excl drift
-
1102 m2 kontor til leje i Taastrup, Storkøbenhavn
- 68.875 DKK kr per måned
- 750 DKK /m2/år - excl drift
Ofte stillede spørgsmål
Statistik over udviklingen i ledige kliniklokaler til leje i Taastrup over den sidste måned
Herunder ser du udviklingen i udbuddet og udlejningen af ledige kliniklokaler til leje i Taastrup over den sidste måned. I den første kolonne ser du datoen. I den anden kolonne ser du det samlede antal kliniklokaler til leje i Taastrup på datoen. I den tredje kolonne ser du antallet af nye kliniklokaler i Taastrup der er udbudt til leje på datoen. I den fjerde kolonne ser du antallet af kliniklokaler i Taastrup der er udlejet på datoen. Se også samlet statistik over alle udbudte kliniklokaler i Taastrup over tid, samlet statistik over nye kliniklokaler i Taastrup over tid, samlet statistik over udlejede kliniklokaler i Taastrup over tid.
| Dato | Alle kliniklokaler til leje | Nye kliniklokaler til leje | Udlejede kliniklokaler |
|---|---|---|---|
| 16. januar 2026 | 10 | 0 | 0 |
| 15. januar 2026 | 10 | 0 | 0 |
| 14. januar 2026 | 10 | 1 | 1 |
| 13. januar 2026 | 10 | 1 | 0 |
| 12. januar 2026 | 9 | 1 | 0 |
| 11. januar 2026 | 8 | 0 | 0 |
| 10. januar 2026 | 8 | 0 | 0 |
| 9. januar 2026 | 8 | 0 | 0 |
| 8. januar 2026 | 8 | 0 | 1 |
| 7. januar 2026 | 9 | 1 | 1 |
| 6. januar 2026 | 9 | 1 | 1 |
| 5. januar 2026 | 9 | 0 | 0 |
| 4. januar 2026 | 9 | 0 | 0 |
| 3. januar 2026 | 9 | 0 | 0 |
| 2. januar 2026 | 9 | 0 | 0 |
| 1. januar 2026 | 9 | 0 | 0 |
| 31. december 2025 | 9 | 0 | 0 |
| 30. december 2025 | 9 | 0 | 0 |
| 29. december 2025 | 9 | 0 | 0 |
| 28. december 2025 | 9 | 0 | 0 |
| 27. december 2025 | 9 | 0 | 0 |
| 26. december 2025 | 9 | 0 | 0 |
| 25. december 2025 | 9 | 0 | 0 |
| 24. december 2025 | 9 | 1 | 1 |
| 23. december 2025 | 9 | 1 | 0 |
| 22. december 2025 | 8 | 1 | 0 |
| 21. december 2025 | 7 | 0 | 0 |
| 20. december 2025 | 7 | 0 | 0 |
| 19. december 2025 | 7 | 0 | 0 |
| 18. december 2025 | 7 | 0 | 0 |
| 17. december 2025 | 7 | 0 | 0 |
Statistik over udbuddet af kliniklokaler til leje i Taastrup
I nedenstående tabel ser du en række data om udbuddet af kliniklokaler til leie i Taastrup.Se også samlet statistik over alle udbudte kliniklokaler i Taastrup over tid, samlet statisik over nye kliniklokaler i Taastrup over tid, samlet statistid over udlejede kliniklokaler i Taastrup over tid
| Kliniklokaler | |
|---|---|
| Antal ledige lokaler | 10 |
| Antal nye lokaler siden i går | 0 |
| Antal udlejede lokaler siden i går | 0 |
| Ledige m2 i alt | 2.354 |
| Gennemsnitlig pris per m2 per år uden drift | 139 |
| Højeste m2-pris | 167 |
| Laveste m2-pris | 100 |