Butik för uthyrning, Köpenhamn K, Köpenhamn,
, Köpenhamn K- Butik för uthyrning
- 67 m2
- 10 633 DKK kr per månad
Butik för uthyrning, Köpenhamn K, Köpenhamn,
Attraktiv beliggenhed og lav husleje
Gode faciliteter, heraf toilet og ældre elementkøkken.
Central beliggenhed i hjertet af københavn.
Beliggenhed tãt på Nørreport station.
Mulighed for mange typer erhverv.
Ejendommen opført i 1810 er beliggende på Nørregade 43 i det centrale nog attraktive København K.
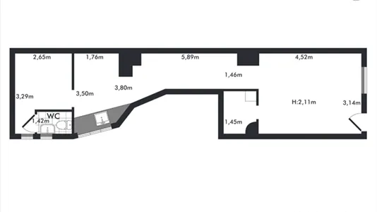
Lejemålet har et samlet etageareal på 67 m2. Lejemålet har en facadebredde på ca 4 meter, med godt vinduesparti samt glas indgangsdør fra gaden. Butikslokalet er indrettet med spots i loftet, og ældre elementkøkken i gennemgangslokalet. Herudover er der toilet og baglokale. Lejemålet er apteret med varierende gulvbelægning samt hvidmalede vægge og lofter. Indvendigt er lejemålet rummeligt og velindrettet med en delvis åben planløsning.
Lejemålet har tidligere været anvendt til salon. Lejemålet kan ikke anvendes til madformål.
Lejemålet ligger centralt placeret i hjertet af københavn, i en af byens mest livlige og populære områder. Beliggenheden er ideel til enhver detailforretning, der ønsker at være en del af en pulserende og travl bydel med en høj trafikstrøm af både lokale og turister.
Nørregsde er kendt for sit brede udvalg af shoppingmuligheder, caféer og restauranter, hvilket gør det til et populært og livligt område. der er også flere turistattraktioner i nærheden, herunder Rundetårn og Strøget, der er en af Europas længste gågader med et væld af butikker og restauranter.
Nørreport Station, som er Københavns travleste transportknudepunkt, ligger kun en kort gåtur fra Nørregade. hermed er der gode transportforbindelser til og fra området via busser, tog og metro.
Nærmeste motorvej er Helsingørmotorvejen, der er beliggende 4,3 km væk fra lejemålet. Samlet set er Nørregade en fantastisk gade for enhver detailforretning, der ønsker at være en del af en travl og pulserende bydel i hjertet af København.
Information och data
Denna lokal att hyra som kan användas till Butik ligger i Köpenhamn K. Köpenhamn K ligger i kommunen som ligger i Köpenhamn. Lokalen är totalt 67 m2. Du kan hyra denna lokal för 127 600 DKK per år. Du kan hyra denna lokal för 127 600 DKK per år.
Liknande lokaler
-
51 m2 butik att hyra i Köpenhamn K, Köpenhamn
- 12 500 DKK kr per månad
- 2 941,18 DKK /m2/år - excl drift
-
30 - 38 m2 butik att hyra i Köpenhamn K, Köpenhamn
- 4 342 DKK /m2/år - excl drift
-
333 m2 butik att hyra i Köpenhamn K, Köpenhamn
- 2 778 DKK kr per månad
- 100 DKK /m2/år - excl drift
-
51 m2 butik att hyra i Köpenhamn K, Köpenhamn
- 12 500 DKK kr per månad
- 2 941,18 DKK /m2/år - excl drift
-
30 - 38 m2 butik att hyra i Köpenhamn K, Köpenhamn
- 4 342 DKK /m2/år - excl drift
Vanliga frågor
Statistik över utvecklingen av lediga butikslokaler att hyra i Köpenhamn K under den senaste månaden
Nedan ser du utvecklingen av lediga butikslokaler att hyra i Köpenhamn K under den senaste månaden. I den första kolumnen ser du datumet. I den andra kolumnen ser du det samlade antalet butikslokaler att hyra i Köpenhamn K på datumet. I den tredje kolumnen ser du antal nya butikslokaler i Köpenhamn K som lagts ut för uthyrning på datumet. I den fjärde kolumnen ser du antal butikslokaler i Köpenhamn K som hyrts ut på datumet. Se även samlad statistik över alla lediga butikslokaler i Köpenhamn K över tid, samlad statistik över nya butikslokaler i Köpenhamn K över tid, samlad statistik över uthyrda butikslokaler i Köpenhamn K över tid.
| Datum | Alla butikslokaler att hyra | Nya butikslokaler att hyra | Uthyrda butikslokaler |
|---|---|---|---|
| 18. november 2025 | 71 | 1 | 2 |
| 17. november 2025 | 72 | 0 | 0 |
| 16. november 2025 | 72 | 1 | 0 |
| 15. november 2025 | 71 | 0 | 1 |
| 14. november 2025 | 72 | 0 | 2 |
| 13. november 2025 | 74 | 0 | 1 |
| 12. november 2025 | 75 | 0 | 1 |
| 11. november 2025 | 76 | 1 | 0 |
| 10. november 2025 | 75 | 0 | 1 |
| 9. november 2025 | 76 | 1 | 0 |
| 8. november 2025 | 75 | 1 | 1 |
| 7. november 2025 | 75 | 0 | 2 |
| 6. november 2025 | 77 | 6 | 0 |
| 5. november 2025 | 71 | 0 | 5 |
| 4. november 2025 | 76 | 1 | 2 |
| 3. november 2025 | 77 | 0 | 0 |
| 2. november 2025 | 77 | 0 | 0 |
| 1. november 2025 | 77 | 0 | 1 |
| 31. oktober 2025 | 78 | 1 | 1 |
| 30. oktober 2025 | 78 | 0 | 1 |
| 29. oktober 2025 | 79 | 1 | 0 |
| 28. oktober 2025 | 78 | 0 | 0 |
| 27. oktober 2025 | 78 | 3 | 0 |
| 26. oktober 2025 | 75 | 0 | 4 |
| 25. oktober 2025 | 79 | 0 | 3 |
| 24. oktober 2025 | 82 | 2 | 0 |
| 23. oktober 2025 | 80 | 0 | 2 |
| 22. oktober 2025 | 82 | 8 | 7 |
| 21. oktober 2025 | 81 | 5 | 0 |
| 20. oktober 2025 | 76 | 0 | 0 |
| 19. oktober 2025 | 76 | 1 | 0 |
Statistik över lediga butikslokaler att hyra i Köpenhamn K
I nedanstående tabell hittar du data om utbudet av butikslokaler att hyra i Köpenhamn K.Se också samlad statistik över alla lediga butikslokaler i Köpenhamn K över tid, samlad statisik över nya butikslokaler i Köpenhamn K över tid, samlad statistik över uthyrda butikslokaler i Köpenhamn K över tid
| Butikslokaler | |
|---|---|
| Antal lediga lokaler | 72 |
| Antal nya lokaler sedan igår | 1 |
| Antal uthyrda lokaler sedan igår | 2 |
| Lediga m2 totalt | 18 589 |
| Genomsnittligt pris per m2 per år utan drift | 661 |
| Högsta m2-pris | 2 892 |
| Lägsta m2-pris | 13 |