Kantoor te huur, Kolding, Region of Southern Denmark,
, 6000 Kolding- Kantoor te huur
- Ca. 860 m2
- Ca. 78.750 DKK per maand
Kantoor te huur, Kolding, Region of Southern Denmark,
Fakta
- 3700541
- Kantoor
- Praktijk
- Ca. 860 m2
- Ca. 944.900 DKK
- Ca. 78.750 DKK
- 1.100 DKK
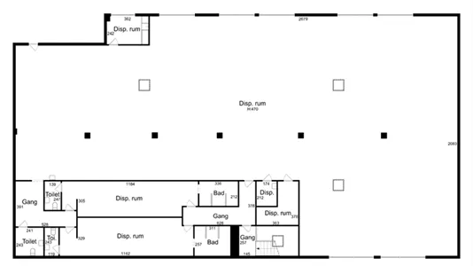
Lokaler til kontor/fitness/klinik
Lokalerne har tidligere været anvendt til fitness og er derfor udformet som et større, åbent lokale med tilhørende omklædning, toilet og badefaciliteter.
Der er store vinduespartier mod syd, hvilket skaber et flot lysindfald.
Lejemålet rummer flere forskellige indretnings- og anvendelsesmuligheder.
Energiklasse A2015.
Etageareal i alt: 859 m²
Beliggenhed ved hovedindfaldsvej
Attraktivt område med gode lejere.
Gode parkeringsforhold
Mulighed for opdeling
Fleksible indretnings- og anvendelsesmuligheder
Årlig leje: 1.100 kr. pr. m² ekskl. drift
Informatie en data
Deze kantoorruimte, die ook kan worden gebruikt als Praktijk, bevindt zich in Kolding. Kolding ligt in de gemeente , die gelegen is in Region of Southern Denmark. De bedrijfsruimte is 859 m2 groot. U kunt dit kantoor huren voor Ca. 944.900 DKK per jaar.
Vergelijkbare zoekresultaten
-
363 m2 kantoor te huur in Kolding, Region of Southern Denmark, Fynsvej
Vrij contact- 19.506 DKK per maand
- 644 DKK /m2/jaar- excl service
-
1057 m2 kantoor te huur in Kolding, Region of Southern Denmark
- 96.892 DKK per maand
- 1.100 DKK /m2/jaar- excl service
-
199 m2 praktijk te huur in Kolding, Region of Southern Denmark
- 9.950 DKK per maand
- 600 DKK /m2/jaar- excl service
-
1786 m2 magazijn te huur in Kolding, Region of Southern Denmark
- 52.092 DKK per maand
- 350 DKK /m2/jaar- excl service
-
114 m2 winkel te huur in Kolding, Region of Southern Denmark
- 10.659 DKK per maand
- 1.122 DKK /m2/jaar- excl service
Veelgestelde vragen
Statistieken over de ontwikkeling van beschikbare kantorruimte te huur in Kolding in de afgelopen maand
Hieronder zie je de ontwikkeling van beschikbare kantorruimte te huur in Kolding over de afgelopen maand. In de eerste kolom zie je de datum. In de tweede kolom zie je het totale nummer van kantorruimte te huur in Kolding op de datum. In de derde kolom zie je de hoeveelheid nieuwe kantorruimte in Kolding die op die datum beschikbaar was voor verhuur. In de vierde kolom zie je het nummer van kantorruimte in Kolding die op die datum werd gehuurd. Zie ook totaal statistieken over alle beschikbare kantorruimte in Kolding in de loop der tijd, totaal statistieken over nieuwe kantorruimte in Kolding in de loop der tijd, totaal statistieken over verhuur kantorruimte in Kolding in de loop der tijd
| Datum | Alle kantorruimte te huur | Nieuwe kantorruimte te huur | Verhuurd kantorruimte |
|---|---|---|---|
| 26. januari 2026 | 137 | 0 | 0 |
| 25. januari 2026 | 137 | 0 | 0 |
| 24. januari 2026 | 137 | 0 | 0 |
| 23. januari 2026 | 137 | 0 | 0 |
| 22. januari 2026 | 137 | 3 | 3 |
| 21. januari 2026 | 137 | 3 | 0 |
| 20. januari 2026 | 134 | 0 | 0 |
| 19. januari 2026 | 134 | 0 | 0 |
| 18. januari 2026 | 134 | 0 | 0 |
| 17. januari 2026 | 134 | 2 | 0 |
| 16. januari 2026 | 132 | 7 | 9 |
| 15. januari 2026 | 134 | 1 | 1 |
| 14. januari 2026 | 134 | 1 | 0 |
| 13. januari 2026 | 133 | 2 | 1 |
| 12. januari 2026 | 132 | 4 | 0 |
| 11. januari 2026 | 128 | 0 | 3 |
| 10. januari 2026 | 131 | 2 | 0 |
| 9. januari 2026 | 129 | 2 | 3 |
| 8. januari 2026 | 130 | 0 | 4 |
| 7. januari 2026 | 134 | 2 | 3 |
| 6. januari 2026 | 135 | 3 | 1 |
| 5. januari 2026 | 133 | 3 | 0 |
| 4. januari 2026 | 130 | 0 | 0 |
| 3. januari 2026 | 130 | 0 | 1 |
| 2. januari 2026 | 131 | 0 | 0 |
| 1. januari 2026 | 131 | 0 | 0 |
| 31. december 2025 | 131 | 0 | 0 |
| 30. december 2025 | 131 | 0 | 0 |
| 29. december 2025 | 131 | 0 | 0 |
| 28. december 2025 | 131 | 0 | 0 |
| 27. december 2025 | 131 | 0 | 0 |
Statistieken over momenteel beschikbare kantorruimte te huur in Kolding
In de onderstaande tabel zie je een reeks gegevens over beschikbare kantorruimte te huur in Kolding.Bekijk ookverzamelde statistieken van alle beschikbare kantorruimte in Kolding in de loop van de tijd, de verzamelde statistieken van nieuwe kantorruimte in Kolding in de loop van de tijd, de verzamelde statistieken van verhuurde kantorruimte in Kolding in de loop van de tijd
| Kantorruimte | |
|---|---|
| Beschikbare panden | 140 |
| Nieuw pand sinds gisteren | 0 |
| Panden verhuurd sinds gisteren | 0 |
| Totaal beschikbare m2 | 87.467 |
| Gemiddelde prijs per m2 per jaar exkl. | 154 |
| Hoogste prijs per m2 per jaar | 1.850 |
| Laagste prijs per m2 per jaar | 32 |