Das Foto wurde von Google Street View bereitgestellt und ist möglicherweise ungenau:

Büro zur Miete, Sollentuna, Stockholm County, Siehe Straßennamen[xxxxxxxxxxxxxxxxx]

Siehe Straßennamen[xxxxxxxxxxxxxxxxx], Sollentuna
  • Büro zur Miete
  • Ca. 80 m2
  • Ca. 11.000 SEK per Monat
Büro zur Miete, Sollentuna, Stockholm County, <span class="blurred street" onclick="ProcessAdRequest(3966926)"><span class="hint">Siehe Straßennamen</span>[xxxxxxxxxxxxxxxxx]</span>
Siehe Straßennamen[xxxxxxxxxxxxxxxxx], Sollentuna
  • Büro zur Miete
  • Ca. 80 m2
  • Ca. 11.000 SEK per Monat

Büro zur Miete, Sollentuna, Stockholm County, Siehe Straßennamen[xxxxxxxxxxxxxxxxx]

Fakta

  • 3966926
  • Büro
  • Praxis
  • Ca. 80 m2
  • Ca. 132.000 SEK
  • Ca. 11.000 SEK
  • Ca. 1.650 SEK

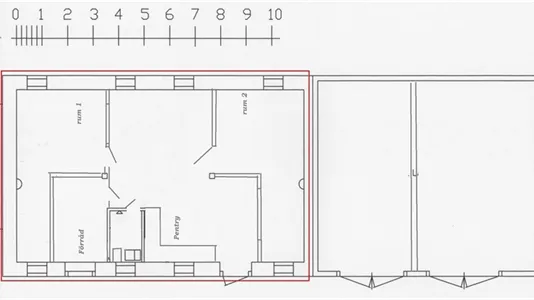
Charmigt kontor i ombyggt grishus – 80 m² Egen entré

Nu finns möjlighet att hyra ett trivsamt och karaktärsfullt kontor om 80 m² i det gamla grishuset.
Lokalen erbjuder en inspirerande miljö med egen entré i ett eget hus.

Lokalen erbjuder:
* Två kontorsrum med parkettgolv och fönster i fasaden
* Stora fönster från kontorsrummen in mot den öppna ytan, perfekt för utställning, möten eller gemensam arbetsyta
* Pentry direkt innanför entrén, utrustat med diskmaskin, kylskåp och golv med klinker.
* Helkaklad WC med dusch
* Golvvärme i hela lokalen för hög komfort året runt
* FTX-ventilation
* Fiberanslutning via Sollentunastadsnät

En trivsam och funktionell lokal som passar utmärkt för mindre företag, konsulter eller kreativ verksamhet.
Välkommen att kontakta oss för mer information eller för att boka visning!

Informationen und Daten

Diese Bürofläche , die auch als Praxis genutzt werden kann, befindet sich in Sollentuna. Sollentuna befindet sich in der Gemeinde , die sich in in Stockholm County befindet. Die Gesamtfläche des Unternehmens beträgt Ca. 80 m2. Sie können dieses Büro für Ca. 132.000 SEK pro Jahr mieten.

Häufig gestellte Fragen

Statistiken über die Entwicklung der verfügbaren Büros for rent in Sollentuna im letzten Monat

Unten sehen Sie die Entwicklung der verfügbaren Büros zur miete in Sollentuna über den vergangenen Monat. In der ersten Spalte sehen Sie das Datum. In der zweiten Spalte sehen Sie die Gesamtzahl der Büros zur miete in Sollentuna bis Heute. In der dritten Spalte sehen Sie die Anzahl der neuen Büros in Sollentuna die an diesem Tag zur Miete verfügbar war. In der vierten Spalte sehen Sie die Anzahl von Büros in Sollentuna die an diesem Tag vermietet wurden. Siehe auch die zusammengefassten Statistiken über alle verfügbaren Büros in Sollentuna über Zeit, zusammengefasste Statistiken über neue Büros in Sollentuna über Zeit, zusammengefasste Statistiken über vermietete Büros in Sollentuna über Zeit

Datum Alle Büros zur Miete Neue Büros zur Miete Vermietete Büros
8. April 2026 121 0 0
7. April 2026 121 0 0
6. April 2026 121 1 1
5. April 2026 121 1 0
4. April 2026 120 0 0
3. April 2026 120 1 1
2. April 2026 120 1 0
1. April 2026 119 3 1
31. März 2026 117 0 0
30. März 2026 117 0 0
29. März 2026 117 0 12
28. März 2026 129 2 3
27. März 2026 130 1 0
25. März 2026 129 0 1
24. März 2026 130 1 0
23. März 2026 129 1 1
22. März 2026 129 1 0
21. März 2026 128 2 0
20. März 2026 126 2 2
19. März 2026 126 2 0
18. März 2026 124 0 0
17. März 2026 124 3 3
16. März 2026 124 3 0
15. März 2026 121 0 0
14. März 2026 121 1 0
13. März 2026 120 3 1
12. März 2026 118 3 4
11. März 2026 119 5 0
10. März 2026 114 0 4
9. März 2026 118 2 0

Statistiken über derzeit verfügbare büros zur Miete in Sollentuna

In der nachstehenden Tabelle sehen Sie eine Reihe von Daten über verfügbare büros zur Miete in Sollentuna.Sehen Sie auchgesammelt Statistiken über alle verfügbaren büros in Sollentuna im Laufe der Zeit, die gesammeltenStatistiken über neue büros in Sollentuna im Laufe der Zeit, die gesammelten Statistiken über vermietete büros in Sollentuna im Laufe der Zeit

Büros
Verfügbare Gewerbeimmobilien 125
Neue Immobilien seit gestern 0
Seit gestern vermietete Immobilien 0
Verfügbare m2 insgesamt 69.370
Durchschnittspreis pro m2 und Jahr ohne Kosten 338
Höchster Preis pro m2 und Jahr 827
Niedrigster Preis pro m2 und Jahr 136